Избранное Избранное 0
ID: 000037354

Пентхаус на Манхэттене, США, 622 м2 - Продажа

14 250 000 $
931 дн. назад
  • 5 шт
  • 622.00 м2
  • 6 шт
  • Рассрочка Да / Нет

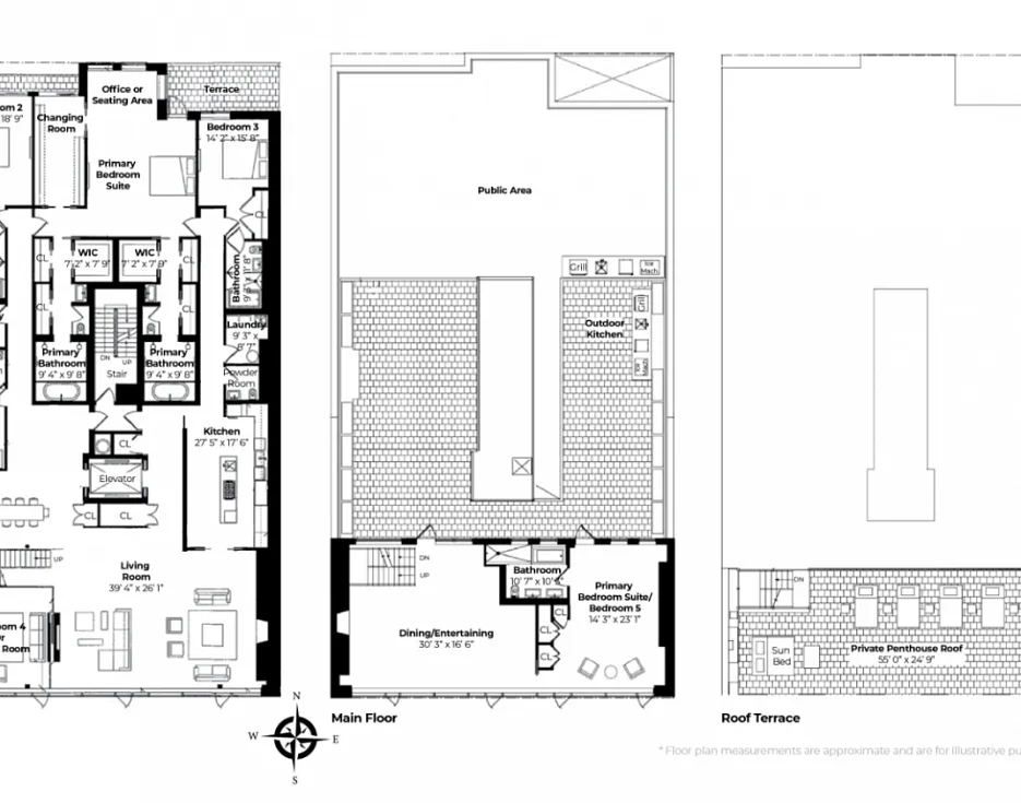
Добро пожаловать в пентхаус Legacy, расположенный в самом сердце Верхнего Ист-Сайда, дуплекс площадью 6700 кв. Футов с 5 спальнями и 6,5 ванными комнатами, залитый элегантными элементами дизайна и обилием естественного света.

Дровяные камины, стены с акцентом на сланцевом голубом страусе и нестандартные встроенные элементы подчеркивают лофт-пространство нейтральных тонов и современных линий. Дом выходит на несколько частных террас и балконов, добавляя почти 3000 кв. Футов роскошных жилых, обеденных и развлекательных помещений.

На нижнем уровне дома запираемый на ключ лифт ведет в просторную прихожую и гостиную, а затем переходит в большую комнату площадью 35 футов с дровяным камином и окнами от пола до потолка, спроектированными Костасом Кондилисом. . Смежная гостевая спальня имеет собственный камин и идеально подходит для использования в качестве библиотеки / логова. Кухня находится рядом с обеденной зоной и оснащена островком-водопадом для еды, гладкими столешницами, индивидуальными шкафами и набором высококачественной техники из нержавеющей стали, включая вытяжку с двумя вентиляционными отверстиями.

Трио спален находится на противоположной стороне нижнего уровня. В главном люксе есть проходная гардеробная, выход на два балкона, зона отдыха, а также туалеты для пар и отдельные ванные комнаты с закрытыми туалетами и душевыми комнатами с глубокими ваннами. В двух других спальнях есть большие туалеты и полностью оборудованные ванные комнаты. На нижнем уровне расположены гостевая туалетная комната, пара прачечных и комната для персонала с ванной комнатой.

Открытая медиа / развлекательная комната и просторная пятая спальня находятся на верхнем уровне дома. В развлекательной комнате есть теплые полы с подогревом, газовый камин и водопровод для потенциального бара. В спальне есть стена из туалетов и отдельная ванная комната с окном, с двойной раковиной, душевой кабиной и ванной. Завершают дом две просторные террасы с собственной летней кухней. Во всех ванных комнатах теплые полы. Выше этого уровня находится большая частная терраса на крыше, которая идеально подходит как святилище или для невероятных развлечений.

Legacy - это бутик-кондоминиум с круглосуточным швейцаром, тренажерным залом и просторной общей террасой на крыше с кухонным оборудованием на открытом воздухе, обеденной зоной и мебелью для отдыха. Здание находится в нескольких шагах от ресторанов, баров, кафе и магазинов, а также недалеко от Центрального парка и Музейной мили. Ближайшие линии метро: 4/5/6 / Q. Домашние животные приветствуются.

Подробнее
Характеристики объекта
  • Есть балкон / терраса
  • Меблирована только кухня
  • Микроволновая печь
  • Плита
  • Пожарная сигнализация
  • Посудомоечная машина
  • Стиральная машина
  • Холодильник
  • Хорошее состояние
  • Чистовая отделка
Инфраструктура проекта
  • Вид на достопримечательности
Наталья Разренова
Позвоните эксперту проекта для консультации
+7 (495) 664-39-99
Получи консультацию финансового эксперта
Для правильной оценки и расчета финансновой модели важно знать все показатели
Уточнить доходность
Уточни статус объекта
Для оценки инвестиционной привлекательности, нужно всегда быть в курсе всех деталей
Запросить статус
Специалист по
недвижимости
Карта